時產300-500立方砂石生產線工藝流程及配置方案
本文詳細介紹一條每小時產量在300-500立方的砂石生產線流程,以及所使用的破碎設備配置方案、流程工藝設計等內容,上海恒源一直致力于為客戶提供有價值的碎石成套生產線設備解決方案,希望此文對大家能有參考和幫助。
一、砂石料類型
破碎物料:石灰巖爆破料
說明:石灰巖屬于硬度不高的物料,在本條砂石生產線配置建議中可以選用反擊式破碎機和細碎機作為二破段中細碎設備。
產量:300-500m³
二、破碎篩分設備型號和價格
序號 | 破碎篩分設備名稱 | 型號 | 功率(kw) | 數量(臺) | 單價(元) | 總價(元) |
1 | 振動喂料機 | ZSW-600*130 | 30 | 1 | 價格請咨詢銷售人員 | |
2 | 顎式破碎機 | PE-1000*1200 | 132 | 1 | ||
3 | 懸掛式給料機 | GZG-1253 | 2.2*2 | 1 | ||
4 | 反擊破 | PF-1515 | 280 | 2 | ||
5 | 高效細碎機(制砂機) | PX-1616 | 250 | 2 | ||
6 | 立軸式沖擊破(整形機) | HB-1000 | 132*2 | 2 | ||
7 | 圓振動篩 | 3YK-3072 | 30*2 | 2 | ||
8 | 圓振動篩 | 3YK-3072 | 30*2 | 2 | ||
9 | 圓振動篩 | 3YK-3072 | 30*2 | 2 | ||
10 | 圓振動篩 | YK-1860 | 18.5 | 1 |
以上設備配置中不包含皮帶機、鋼結構、混凝土基礎及電纜電線等輔助件;所有設備均實行國家“三包”政策,質保期限為一年(易損件除外);設備的付款方式和發貨周期請咨詢本公司銷售人員。
三、砂石生產線工藝流程
1、頭破機組設備選型
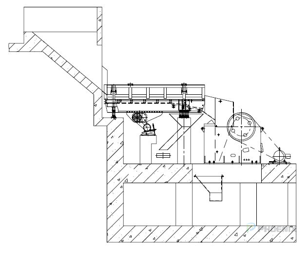
采用振動式喂料機型號為:ZSW600*130喂料機,為砂石生產線提供均勻給料。
工藝流程說明:
振動喂料機的篩分功能,能確保將石料中的土質雜質及碎料分離出來,然后由并機的YK1860振動篩進行精細篩分,將小于20mm的雜土廢料分離出,從而確保石料的品質,并達到原料最小損失量。顎式破碎機采用PE1000*1200型號,滿足最大進料粒度850mm的破碎要求。經過振動喂料機篩分的大料,以及除土篩回收的小料,進入顎式破碎機進行破碎作業。
振動喂料機的篩分功能,能確保將石料中的土質雜質及碎料分離出來,然后由并機的YK1860振動篩進行精細篩分,將小于20mm的雜土廢料分離出,從而確保石料的品質,并達到原料最小損失量。顎式破碎機采用PE1000*1200型號,滿足最大進料粒度850mm的破碎要求。經過振動喂料機篩分的大料,以及除土篩回收的小料,進入顎式破碎機進行破碎作業。

圖:振動喂料機、顎式破碎機(組合安裝簡圖)

圖:振動喂料機和顎式破碎機現場圖
振動喂料機前方設計使用大型料倉,滿足生產線持續大流量喂料的需求;裝載車可以直接向大型料斗卸料,也可以由裝載機直接裝載供料給喂料機。
2、二破機組設備選型
采用反擊式破碎機,型號為:PF1515,為砂石生產線提供二級破碎。
工藝流程說明:
經過頭破系統的處理后,石料粒度降低到250mm以內,其中80%以上降低到200mm以內。然后,經由1.4米寬度的皮帶輸送機,輸送到中間料倉進行緩沖。
經過頭破系統的處理后,石料粒度降低到250mm以內,其中80%以上降低到200mm以內。然后,經由1.4米寬度的皮帶輸送機,輸送到中間料倉進行緩沖。
中間料倉具有一定儲量的緩沖能力,當頭破系統喂料量不充足的情況下,能夠滿足二破系統數小時的供料量,從而規避二破及后續系統的空載現象,進而實現生產效益的最大化。
中間料倉的緩沖料,通過料倉底部型號為GZG-1253懸掛喂料機,均勻輸送到兩臺并聯的大型PF1515反擊式破碎機,完成第二級的破碎作業。反擊式破碎機PF1515具有強大的破碎能力,能夠將石料粒度破碎到厘米級規格,并具備一定的粒型度。

圖:反擊式破碎機(安裝簡圖)

圖:反擊式破碎機現場

圖:反擊式破碎機現場
兩臺并聯的大型反擊破,在設備下方共用一條倒料皮帶輸送機,將兩臺反擊破的出料并聯輸送,搭接到后續1.4米寬的主皮帶機,輸送到下一級振動篩進行篩分。
3、一次篩分機組選型
采用振動篩,型號為YK系列,建議型號為3YK3072振動篩,為砂石生產線提供物料篩分。
工藝流程說明:
經過兩級破碎之后,石料的粒度基本降低到厘米級別。我司生產線采用兩臺并聯的大型3YK3072圓振動篩,將厘米級混合料進行一次篩分處理。
經過兩級破碎之后,石料的粒度基本降低到厘米級別。我司生產線采用兩臺并聯的大型3YK3072圓振動篩,將厘米級混合料進行一次篩分處理。

圖:振動篩(安裝簡圖)

圖:振動篩現場
工藝流程說明:
3YK3072振動篩的四種出料,進入不同的后續作業流程。
3YK3072振動篩的四種出料,進入不同的后續作業流程。
a、0-6mm,直接作為成品料,輸送到后續篩分設備,完成0-3mm、3-6mm的篩分堆料;
b、6-11mm,振動篩采用雙向出料口設計:

圖:雙向出料口簡圖
A向出料口,6-11mm物料作為成品料,輸送到后續篩分設備,完成篩分后堆料;
B向出料口,6-11mm物料輸送到細碎機進行制砂。選擇不同的出料口,可以實現不同的運行任務;
c、11-31.5mm,作為半成品料,輸送到型號HB1000制砂整形機進行整型破碎,從而獲得粒型優異的石子骨料;
d、大于31.5mm,輸送到細碎機進行第三級破碎作業。
4、超高細破碎機組選型
采用高效細碎機,型號為PCD1616,能為砂石生產線提供更細化的破碎工序。
工藝流程說明:
采用兩臺大型PCD1616超高細破碎機,實現高效率的細化破碎任務。高效細碎機采用了先進的分體式錘破結構,以及高頻反擊強制破碎技術,能夠獲得最高效率的細碎效果。因此,細碎機組不僅可以將需求量很少的6-11mm中間料完全細化為6mm以下的機制砂,同時將大于31mm的返料完全消化。
采用兩臺大型PCD1616超高細破碎機,實現高效率的細化破碎任務。高效細碎機采用了先進的分體式錘破結構,以及高頻反擊強制破碎技術,能夠獲得最高效率的細碎效果。因此,細碎機組不僅可以將需求量很少的6-11mm中間料完全細化為6mm以下的機制砂,同時將大于31mm的返料完全消化。
高效細碎機PCD1616采用了分體式高鉻合金材質錘頭,具備超強耐磨特性,在石灰巖破碎生產線應用中性能突出,獲得了用戶的高度評價,在全國各地區由大量應用案例,可以參觀考察。

圖:高效細碎機(安裝組合簡圖)

圖:細碎機現場
兩臺并聯PCD1616高效細碎機,在設備下方共用一條倒料皮帶輸送機,將兩臺反擊破的出料并聯輸送,搭接到后續1.4米寬的主皮帶機,輸送到下一級振動篩進行篩分。兩臺并聯PCD1616高效細碎機,以及兩臺PF1515大型反擊破,共用了一條主皮帶輸送機,從而達到了簡約化布局效果,減少了中間能耗與空間占用。
5、整型機組選型
采用制砂整形機,型號為HB1000系列,為砂石生產線提供粒型優異的成品料。
工藝流程說明:石料經過顎破、反擊破的兩極破碎作業、一次篩分機組,將11-31.5mm的半成品篩分后,通過皮帶輸送機輸送到整型機組。該生產線工藝設計,采用了兩臺HB1000整型機并聯作業。一次篩分出的11-31.5mm半成品料全部整型破碎,從而獲得粒型優異的成品石子骨料。

圖:制砂整形機(安裝組合簡圖)

圖:制砂整形機現場圖

圖:制砂整形機現場圖
HB系列整型機采用高速、離心、沖擊式整型技術,能夠使得石料的粒型獲得最大程度的優化,從而達到各類高等級石子骨料的技術要求。兩臺并聯HB1000高速整形機,在設備下方共用一條倒料皮帶輸送機,將兩臺整型機的出料并聯輸送,搭接到后續1.2米寬的皮帶機,輸送到下一級振動篩進行篩分。
6、成品料篩分機組選型
該砂石生產線成品料共計6種,分別如下表所示:
成品類型 | 0~3mm | 3~6mm | 6~11mm | 11~19mm | 19~26.5mm | 26.5~31.5mm |
比例范圍 | 30% | 20% | 5% | 20% | 10% | 10% |
工藝流程說明:
根據我司對石灰巖砂石生產線的工藝設計,0-19mm范圍的物料占成品80%,由兩臺大型3YK3072圓振動篩完成篩分作業;19-31.5mm范圍物料占成品20%,由一臺3YK3072大型圓振動篩完成篩分作業。成品篩分機組、一次篩分機組,采用了相同的規格型號3YK3072,可以實現備品備件的完全互換與通用,從而減少備件庫存,減少備件的資金積壓,也提高了振動篩維修維護的便捷性。
根據我司對石灰巖砂石生產線的工藝設計,0-19mm范圍的物料占成品80%,由兩臺大型3YK3072圓振動篩完成篩分作業;19-31.5mm范圍物料占成品20%,由一臺3YK3072大型圓振動篩完成篩分作業。成品篩分機組、一次篩分機組,采用了相同的規格型號3YK3072,可以實現備品備件的完全互換與通用,從而減少備件庫存,減少備件的資金積壓,也提高了振動篩維修維護的便捷性。
7、除土篩設備選型
除土篩的應用能夠確保原料中的土質雜質被完全清除,從而獲得高品質砂石骨料。
工藝流程說明:
振動喂料機的篩分功能,只能實現局部篩分,無法將原料中的土質雜質完全篩離。如果不能做到完全除土,那么就無法獲得高品質的砂石骨料。因此,我司采用單獨并聯的YK1860振動篩作為除土篩,設計目的非常明確,就是將原料中的土質雜質清除干凈,獲得高品質成品料。此外,采用單獨的除土篩,可以將廢料中的有用石子回收,降低原料損失率。長期運行過程中,回收的數量會非常可觀,經濟效益顯著。
振動喂料機的篩分功能,只能實現局部篩分,無法將原料中的土質雜質完全篩離。如果不能做到完全除土,那么就無法獲得高品質的砂石骨料。因此,我司采用單獨并聯的YK1860振動篩作為除土篩,設計目的非常明確,就是將原料中的土質雜質清除干凈,獲得高品質成品料。此外,采用單獨的除土篩,可以將廢料中的有用石子回收,降低原料損失率。長期運行過程中,回收的數量會非常可觀,經濟效益顯著。
8、其它:
本著高效節能,穩定可靠的設計理念,我司在多年實踐經驗的基礎上,設計完成該生產線工藝流程并不斷進行升級優化。請各位讀者、專家批評指正,以便于綜合各方的經驗與技術,獲得較好的設計、運行效果,非常感謝大家閱讀本文!
此文為上海恒源冶金設備有限公司www.zkfg.net.cn原創發布,轉載請注明文章出處!
返回首頁
深入解析公路制砂機:性能特點、原理、應用范圍及市場案例
2024-11-30
【礦山環保整治】礦山生產對環境保護的7個方面影響!礦山不夠環保該怎么整改?
2019-08-05
移動破碎機生產現場模擬動畫
2023-02-25
出口安哥拉破碎設備發貨實況回顧
2019-05-12
哪些原因造成輸送機停機
2019-05-12
淺析哪種沙子可以稱為機制砂?機制砂又有什么特點?
2019-10-16
環保裝備制造業(固廢處理裝備)規范條件(征求意見稿)發布
2019-12-24
加緊綠色礦山建設——十分必要,意義重大!
2019-09-10
湖南寧鄉4YK2475振動篩設備發貨回顧
2019-12-11
反擊破內部結構拆解視頻
2020-04-10
可逆錘式破碎機經常更換零部件會有哪些后果
2020-09-30
使用破碎機需要做好日常維護
2019-05-12
顎式破碎機出現返料原因及解決方法
2023-05-17
河南信陽固始縣發布《關于固始縣河砂便民超市試運行辦法》
2019-11-22
保護生態環境,堅持綠色發展-湖北省綠色礦山建設培訓班開班
2019-09-20
振動篩現場案例
2020-04-07
【破碎設備】時產300噸砂石破碎機需多大功率
2019-08-30
【破碎機廠家】從發展趨勢看,節能環保和高效型的破碎機,制砂機產品無疑是今后破碎機械
2019-08-12
【破碎】鄂式破碎機的關鍵6個位置安裝關鍵點
2019-09-23
選擇圓錐破碎機的正確方法_上海恒源
2019-05-10