生產破碎機的廠家提供時產300噸石灰巖生產線設備選型技術方案
導讀:本文是上海恒源冶金設備有限公司向客戶免費提供的時產300噸石灰巖破碎篩分生產線設備配置及破碎篩分設備的選型技術方案,建議購買設備的客戶可以根據自己物料的硬度和產量,參考這個方案后在這個基礎上稍作調整,以取得石料生產線的高效、節能和效率的最大化,希望對客戶有所幫助。
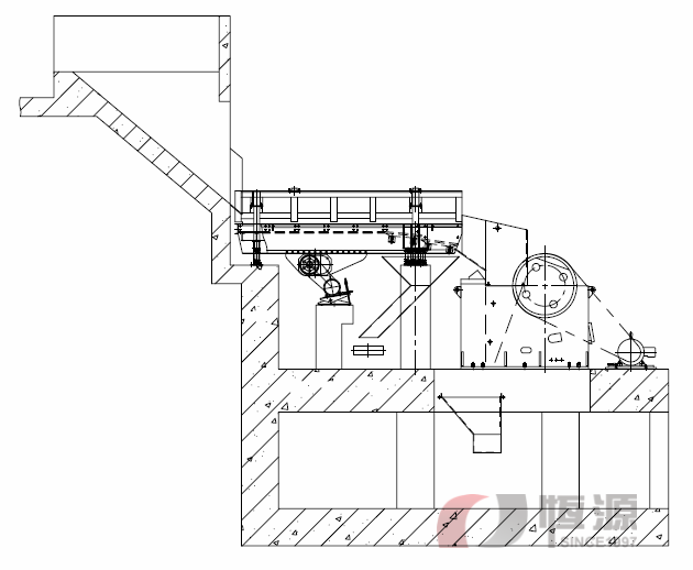
先來介紹一下本條石灰巖生產線工藝流程,流程圖如下:
再來介紹一下石灰巖破碎生產線的工藝流程設計方案:
1、頭破機組:
采用棒條喂料機ZSW590*110,為生產線提供均勻喂料。棒條喂料機的篩分功能,能夠確保將原料中的土質雜質及碎料分離出來,然后通過皮帶輸送機輸送后堆料處理,從而確保原料的品質,并達到原料最小損失量。
顎式破碎機采用PE870*1060型號,滿足最大進料粒度670mm的破碎要求。經過棒條喂料機篩分的大料,進入顎式破碎機進行破碎作業。
棒條喂料機前方設計使用大型料倉,滿足生產線持續大流量喂料需求。裝載車可以直接向大型料斗卸料,也可以由裝載機裝載供料。
2、二破機組:
經過頭破系統的處理,石料粒度降低到250mm以內,80%以上降低到200mm以內。然后,經由皮帶輸送機,輸送到二破機組或者中間料倉。
中間料倉僅作為參考選型,可以不使用。本方案流程圖中未采用中間料倉。
中間料倉具有一定儲量的緩沖能力,當頭破系統喂料量不充足的情況下,能夠滿足二破系統數小時的供料量,從而規避二破及后續系統的空載現象,進而實現生產效益的最大化。
中間料倉的緩沖料,通過料倉底部的懸掛喂料機GZG-1007,均勻輸送到兩臺并聯的大型反擊破PF1315,完成第二級破碎作業。反擊式破碎機PF1315具有強大的破碎能力,能夠將石料粒度破碎到厘米級規格,并具備一定的粒型度。
兩臺并聯的大型反擊破,在設備下方共用一條倒料皮帶輸送機,將兩臺反擊破的出料并聯輸送,搭接到后續的主皮帶機,輸送到下一級振動篩進行篩分。
3、篩分機組:
經過兩級破碎之后,石料的粒度基本降低到厘米級別。我司生產線采用兩臺并聯的大型圓振動篩4YK2460,將厘米級混合料進行一次篩分處理。
4、超高細破碎機組
采用超高細破碎機PX1414,實現高效率的細化破碎任務。高效細碎機采用了先進的分體式錘破結構,以及高頻反擊強制破碎技術,能夠獲得最高效率的細碎效果。
因此,細碎機組不僅可以將需求量很少的5~10mm中間料完全細化為5mm以下的機制砂,同時將大于30mm的返料完全消化。
高效細碎機PX1414采用了分體式高鉻合金材質錘頭,具備超強耐磨特性,在石灰巖破碎生產線應用中性能突出,獲得了用戶的高度評價,在貴州地區由大量應用案例,歡迎參觀考察。
上海恒源企業簡介
上海恒源是集冶金裝備、礦山設備、機械鑄造、機電工程的設計、制造、工程安裝及國際貿易為一體的大型股份制企業集團,是一家老牌專業生產破碎機的廠家,集團公司的前身——上海恒源機械廠于1987就開始了礦山設備、重型裝備的設計與制造,是國內規模比較大的礦山設備制造企業之一!
集團下屬冶金設備公司制造的“山碎”牌系列礦山設備、選礦設備、冶金設備等處于國際同類產品先進水平,在國內外市場上具體極高的知名度,產品出口到60多個國家和地區!集團下屬鑄造公司、機電工程公司,鑄造高鉻合金、精密合金耐磨件、設計制造機電一體化控制設備,為國際知名礦山設備及國內頂尖裝備制造商提供產品配套服務。 集團下屬外貿公司負責集團公司產品的國際市場開拓、開展經濟技術合作、提供砂石生產咨詢、國外安裝工程承包等業務!
目前,公司擁有各類技術和管理人員300余人,廠房占地面積六萬多平米,各種大型加工設備100多臺套,通過了ISO、CE等國際質量體系認證,獲得了“中國礦山機械行業50強企業”,“上海市科技創新企業”,“AAA質量誠信單位”等一系列榮譽!
公司不僅有性能可靠的產品和經驗豐富的售后服務團隊,相信您需要的不僅僅是我們的產品,更是全方面的售后服務。恒源人重視的是精益求精的產品技術和質量,追求的是為您提供稱心、省心、放心、安心的無憂服務。
我們將秉持“誠信、務實、創新、發展”的理念,與國內外用戶一起合作雙贏,共同發展!

先來介紹一下本條石灰巖生產線工藝流程,流程圖如下:

再來介紹一下石灰巖破碎生產線的工藝流程設計方案:
1、頭破機組:
采用棒條喂料機ZSW590*110,為生產線提供均勻喂料。棒條喂料機的篩分功能,能夠確保將原料中的土質雜質及碎料分離出來,然后通過皮帶輸送機輸送后堆料處理,從而確保原料的品質,并達到原料最小損失量。
顎式破碎機采用PE870*1060型號,滿足最大進料粒度670mm的破碎要求。經過棒條喂料機篩分的大料,進入顎式破碎機進行破碎作業。

棒條喂料機前方設計使用大型料倉,滿足生產線持續大流量喂料需求。裝載車可以直接向大型料斗卸料,也可以由裝載機裝載供料。
2、二破機組:
經過頭破系統的處理,石料粒度降低到250mm以內,80%以上降低到200mm以內。然后,經由皮帶輸送機,輸送到二破機組或者中間料倉。
中間料倉僅作為參考選型,可以不使用。本方案流程圖中未采用中間料倉。
中間料倉具有一定儲量的緩沖能力,當頭破系統喂料量不充足的情況下,能夠滿足二破系統數小時的供料量,從而規避二破及后續系統的空載現象,進而實現生產效益的最大化。
中間料倉的緩沖料,通過料倉底部的懸掛喂料機GZG-1007,均勻輸送到兩臺并聯的大型反擊破PF1315,完成第二級破碎作業。反擊式破碎機PF1315具有強大的破碎能力,能夠將石料粒度破碎到厘米級規格,并具備一定的粒型度。

兩臺并聯的大型反擊破,在設備下方共用一條倒料皮帶輸送機,將兩臺反擊破的出料并聯輸送,搭接到后續的主皮帶機,輸送到下一級振動篩進行篩分。
3、篩分機組:
經過兩級破碎之后,石料的粒度基本降低到厘米級別。我司生產線采用兩臺并聯的大型圓振動篩4YK2460,將厘米級混合料進行一次篩分處理。

- 振動篩4YK2460的四種出料,0~5mm、5~10mm、10~20mm、20~30mm分別堆料處理。
- 振動篩形成的返料進入高校細碎機PX-1414進行制砂處理;
- 5~30mm的成品料,既可以作為成品堆料處理,也可以通過粉料斗出口的轉換,與大于30mm的返料一切輸送到細碎機PX1414進行制砂;
- 因此,通過振動篩出料斗的雙出口設計,可以調節不同成品料的比例;
- 該方案可以確保0~5mm機制砂產量達到每小時150噸左右。
4、超高細破碎機組
采用超高細破碎機PX1414,實現高效率的細化破碎任務。高效細碎機采用了先進的分體式錘破結構,以及高頻反擊強制破碎技術,能夠獲得最高效率的細碎效果。
因此,細碎機組不僅可以將需求量很少的5~10mm中間料完全細化為5mm以下的機制砂,同時將大于30mm的返料完全消化。
高效細碎機PX1414采用了分體式高鉻合金材質錘頭,具備超強耐磨特性,在石灰巖破碎生產線應用中性能突出,獲得了用戶的高度評價,在貴州地區由大量應用案例,歡迎參觀考察。

上海恒源企業簡介
上海恒源是集冶金裝備、礦山設備、機械鑄造、機電工程的設計、制造、工程安裝及國際貿易為一體的大型股份制企業集團,是一家老牌專業生產破碎機的廠家,集團公司的前身——上海恒源機械廠于1987就開始了礦山設備、重型裝備的設計與制造,是國內規模比較大的礦山設備制造企業之一!
集團下屬冶金設備公司制造的“山碎”牌系列礦山設備、選礦設備、冶金設備等處于國際同類產品先進水平,在國內外市場上具體極高的知名度,產品出口到60多個國家和地區!集團下屬鑄造公司、機電工程公司,鑄造高鉻合金、精密合金耐磨件、設計制造機電一體化控制設備,為國際知名礦山設備及國內頂尖裝備制造商提供產品配套服務。 集團下屬外貿公司負責集團公司產品的國際市場開拓、開展經濟技術合作、提供砂石生產咨詢、國外安裝工程承包等業務!
目前,公司擁有各類技術和管理人員300余人,廠房占地面積六萬多平米,各種大型加工設備100多臺套,通過了ISO、CE等國際質量體系認證,獲得了“中國礦山機械行業50強企業”,“上海市科技創新企業”,“AAA質量誠信單位”等一系列榮譽!
公司不僅有性能可靠的產品和經驗豐富的售后服務團隊,相信您需要的不僅僅是我們的產品,更是全方面的售后服務。恒源人重視的是精益求精的產品技術和質量,追求的是為您提供稱心、省心、放心、安心的無憂服務。
我們將秉持“誠信、務實、創新、發展”的理念,與國內外用戶一起合作雙贏,共同發展!
返回首頁
上海恒源顎式破碎設備太可怕石頭進去,石渣出
2019-05-12
顎式破碎機多方位解讀
2019-08-28
破碎篩分設備順利發貨至貴州
2024-10-07
第14界莫斯科國際建筑工程機械科技展回顧
2019-05-12
砂石生產線案例視頻二
2020-04-07
上海破碎機-錘式破碎機行業信息化
2019-05-12
上海破碎機簡述
2019-05-12
砂石生產線安全注意事項
2019-12-25
【砂石骨料】經常說的礦山生態修復,綠色礦山砂石企業建設到底怎么做?
2019-10-14
圓錐破碎機優勢突出前景廣闊,正在向智能化目
2019-05-12
顎式破碎機生產時粉塵大的原因及解決方法
2023-05-07
顎式破碎機顎板磨損原因及解決方法
2023-02-17
各種破碎機械的特點-反擊式破碎機
2019-05-12
顎式破碎機組裝動畫
2023-03-01
反擊式破碎機發貨至江西德興
2024-01-20
反擊式破碎機機器的技術優勢
2019-05-12
碎石生產線訂制需注意的幾個關鍵因素
2024-10-15
破碎機械設備工作前--了解巖石也很重要
2019-05-10
【破碎機設備】這都不知道,談什么做好砂石企業!
2019-08-12
圓錐破碎機產能低,不掙錢?11個方法讓你的圓錐破產能最大化
2019-09-11